Dom Plný Energie. Stavebná spoločnosť - generálny dodávateľ rodinných domov. Pracujeme od pondelka do piatku (9.00-17.00).
Pracujeme od pondelka do piatku (9.00-17.00).

Zavolajte na

alebo napíšte

Pathfinder

Energeticky úsporný prízemný dom s obytným podkrovím

Adaptácia k terénu

Využitie prirodzeného svetla

Zaujímavá architektúra

Veľké presklené plochy

Opísanie projektu

Dizajn s nádychom tradície. Budova odráža čaro poľskej podcieniovej architektúry, ktorá nielenže pôsobí očarujúco, ale zároveň chráni pred nevyspytateľným počasím.

Veľké okná a terasy zahrnuté v projekte presvetľujú miestnosti a vytvárajú dojem, že horizont máte na dosah ruky. Drevo a bridlica použité na fasáde sú prírodné materiály, ktoré dodávajú budove rustikálny charakter. Dom s výhľadom na mesto v diaľke je skutočnou architektonickou perlou a miestom, kde si môžete vychutnávať pôsobivú panorámu. Rozsiahle presklenia a terasy podporujú vychutnávanie krásnych výhľadov a vpúšťanie prirodzeného svetla do interiéru, čím ho opticky zväčšujú.

Pôdorys prízemia
  1. Zádverie 7,12 m2
  2. Komunikácia 9,23 m2
  3. WC 3,92 m2
  4. Obývačka + jedáleň + kuchyňa 55,45 m2
  5. Špajza 3,88 m2
  6. Pracovňa/izba 11,08 m2
  7. Komunikácia 2,56 m2
  8. Garáž 44,01 m2
  9. Seniorát – zádverie 4,20 m2
  10. Komunikácia 4,45 m2
  11. Seniorát – kúpeľňa 3,70 m2
  12. Seniorát – obývačka + kuchyňa 22,49 m2
  13. Úžitková plocha obytnej budovy 171,09 m2
Pôdorys využiteľné podkrovie
  1. Komunikácia 8,72 m2
  2. Izba 21,43 m2
  3. Tanečná sála 41,44 m2
  4. Izba 13,79 m2
  5. Práčovňa 3,27 m2
  6. Kúpeľňa 15,33 m2
  7. Hlavná spálňa 25,88 m2
  8. Šatník 14,23 m2
  9. Úžitková plocha obytnej budovy 144,09 m2
Pôdorys pivnice
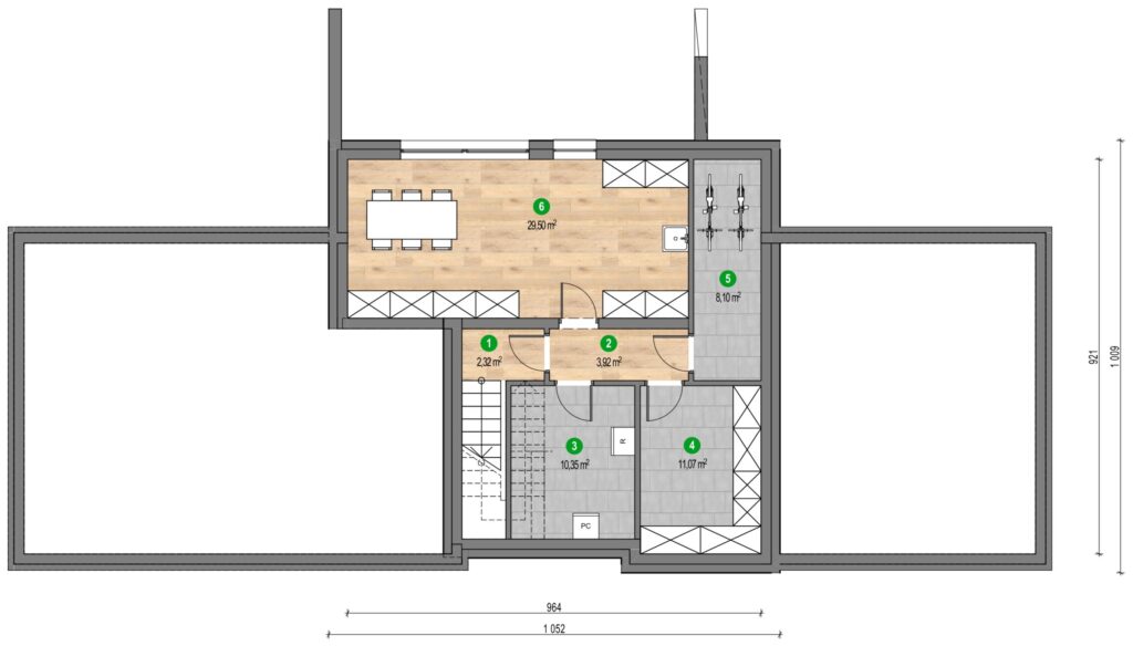
  1. Komunikácia 2,32 m2
  2. Komunikácia 3,92 m2
  3. Kotolňa 10,35 m2
  4. Hospodárska miestnosť 11,07 m2
  5. Hospodárska miestnosť 8,10 m2
  6. Hospodárska miestnosť 29,50 m2
  7. Úžitková plocha obytnej budovy 65,26 m2
Prierezy domu

Technické parametre

Typ domu:
Prízemný s obytným podkrovím
Počet izieb:
4
Počet kúpeľní:
2
Garáž:
Dvojmiestna garáž
Čistá cena od:
Individuálna kalkulácia
Čistá plocha:
380,00 m²

Bezplatná cenová ponuka
za 60 sekúnd

Koľko bude stáť váš dom? My poznáme odpoveď!

Vyplňte formulár a získajte ponuku ihneď

Populárne projekty

Prízemný dom s obytným podkrovím
Metráž: 161,00 m²
Energeticky úsporný prízemný dom
Metráž: 291,00 m²
Ekonomický Prízemný dom
Metráž: 85,00 m²
Cena bez DPH od: 102 000 €
Energeticky úsporný poschodový dom
Metráž: 238,00 m²
  1. Zádverie 7,12 m2
  2. Komunikácia 9,23 m2
  3. WC 3,92 m2
  4. Obývačka + jedáleň + kuchyňa 55,45 m2
  5. Špajza 3,88 m2
  6. Pracovňa/izba 11,08 m2
  7. Komunikácia 2,56 m2
  8. Garáž 44,01 m2
  9. Seniorát – zádverie 4,20 m2
  10. Komunikácia 4,45 m2
  11. Seniorát – kúpeľňa 3,70 m2
  12. Seniorát – obývačka + kuchyňa 22,49 m2
  13. Úžitková plocha obytnej budovy 171,09 m2
Pôdorys prízemia
  1. Komunikácia 8,72 m2
  2. Izba 21,43 m2
  3. Tanečná sála 41,44 m2
  4. Izba 13,79 m2
  5. Práčovňa 3,27 m2
  6. Kúpeľňa 15,33 m2
  7. Hlavná spálňa 25,88 m2
  8. Šatník 14,23 m2
  9. Úžitková plocha obytnej budovy 144,09 m2
Pôdorys využiteľné podkrovie
Wiatrołap: 4,68 m2 Pralnia: 5,71 m2 Gabinet: 9,14 m2 Łazienka: 5,23 m2 Salon z kuchnią: 53,86 m2 Komunikacja: 12,93 m2 Garaż: 23,86 m2 Powierzchnia: użytkowa 115,41 m2; podłóg: 116,90 m2
Pôdorys podlažia
  1. Komunikácia 2,32 m2
  2. Komunikácia 3,92 m2
  3. Kotolňa 10,35 m2
  4. Hospodárska miestnosť 11,07 m2
  5. Hospodárska miestnosť 8,10 m2
  6. Hospodárska miestnosť 29,50 m2
  7. Úžitková plocha obytnej budovy 65,26 m2
Pôdorys pivnice

Páči sa ti tento projekt?

Pathfinder

Vyplň formulár a my sa ti ozveme, aby sme tvoju víziu premenili na realitu.

* Povinné polia