Dom Plný Energie. Stavebná spoločnosť - generálny dodávateľ rodinných domov. Pracujeme od pondelka do piatku (9.00-17.00).
Pracujeme od pondelka do piatku (9.00-17.00).

Zavolajte na

alebo napíšte

Groundbreaker

Energeticky úsporný poschodový dom

Moderný dizajn

Minimalistické vyhotovenie

Veľké presklenia

Priestranná terasa

Opísanie projektu

Jeden z našich projektov predstavuje rodinný dom v tvare písmena „L“, ktorý bol navrhnutý s dôrazom na funkčnosť, estetiku a komfort obyvateľov. Vonkajšia fasáda kombinuje drevo, antracit a bielu farbu, čo budove dodáva útulný charakter.

Časť domu so šikmou strechou tvorí denná zóna, kde veľké panoramatické okná prepúšťajú prirodzené svetlo do priestrannej obývačky. Kuchyňa je elegantne začlenená do otvoreného priestoru a zaujme moderným dizajnom a ergonomickým usporiadaním. Presklené steny v obývačke vedú na tichý vnútorný dvor s krásnou záhradou, ktorá zabezpečuje blízkosť prírody a súkromie.

Druhú časť domu pokrýva plochá strecha – táto časť zahŕňa nočnú zónu s útulnými spálňami, z ktorých sa otvára výhľad na okolitú zeleň. Ďalší priestor na spanie sa nachádza aj v podkroví.

Na pozemku sa nachádza aj praktický hosťovský domček v štýle podobnom hlavnej budove, čo vytvára vizuálne harmonický celok. Tento objekt možno využiť aj ako kanceláriu alebo súkromnú oddychovú zónu.

Oba objekty sa nachádzajú na modernom sídlisku rodinných domov, kde sa dôraz na architektonické detaily spája s ekologickým prístupom. Okolie je plné zelene a uličky sú navrhnuté tak, aby podporovali prechádzky a stretávanie sa s ostatnými obyvateľmi.

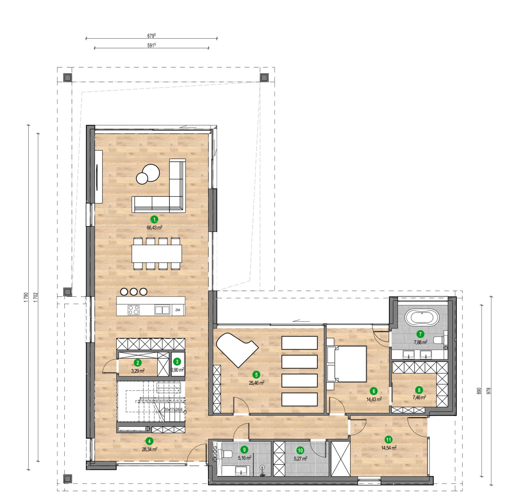
Pôdorys prízemia
  • Obývačka + jedáleň + kuchyňa: 66,43 m²
  • Špajza: 3,29 m²
  • Sklad: 0,90 m²
  • Chodba: 28,34 m²
  • Rekreačná miestnosť: 25,46 m²
  • Spálňa: 14,43 m²
  • Kúpeľňa: 7,88 m²
  • Šatník: 7,46 m²
  • Kúpeľňa: 5,16 m²
  • Technická miestnosť: 5,27 m²
  • Izba: 14,54 m²
  • Úžitková plocha: 179,16 m²
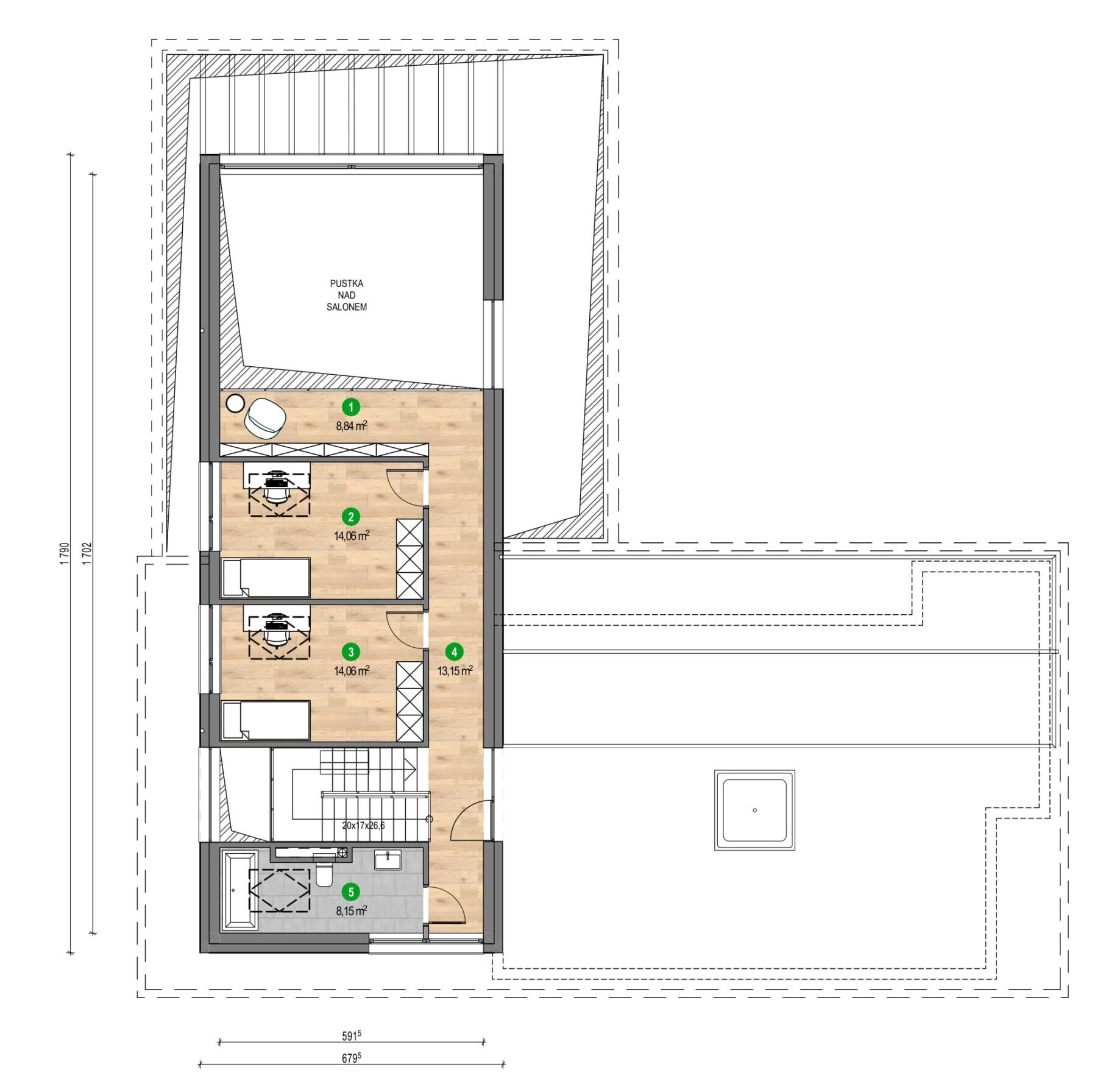
Pôdorys poschodia
  • Galéria: 8,84 m²
  • Izba / spálňa: 14,06 m²
  • Izba / spálňa: 14,06 m²
  • Chodba: 14,15 m²
  • Kúpeľňa: 8,15 m²
  • Úžitková plocha: 59,26 m²

Technické parametre

Typ domu:
Poschodový
Počet izieb:
6
Počet kúpeľní:
3 kúpeľne
Garáž:
Dvojmiestna garáž
Rozsah výstavby:
Energeticky efektívny stav vývoja
Čistá cena od:
Individuálna kalkulácia
Čistá plocha:
238,00 m²

Bezplatná cenová ponuka
za 60 sekúnd

Koľko bude stáť váš dom? My poznáme odpoveď!

Vyplňte formulár a získajte ponuku ihneď

Populárne projekty

Ekonomický Prízemný Dom
Metráž: 98,00 m²
Cena bez DPH od: 117 000 €
Energeticky úsporný prízemný dom
Metráž: 291,00 m²
Energeticky úsporný prízemný dom
Metráž: 116,00 m²
Cena bez DPH od: 147 000 €
Energeticky úsporný poschodový dom
Metráž: 352,10 m²
  • Obývačka + jedáleň + kuchyňa: 66,43 m²
  • Špajza: 3,29 m²
  • Sklad: 0,90 m²
  • Chodba: 28,34 m²
  • Rekreačná miestnosť: 25,46 m²
  • Spálňa: 14,43 m²
  • Kúpeľňa: 7,88 m²
  • Šatník: 7,46 m²
  • Kúpeľňa: 5,16 m²
  • Technická miestnosť: 5,27 m²
  • Izba: 14,54 m²
  • Úžitková plocha: 179,16 m²
Pôdorys prízemia
Wiatrołap: 4,68 m2 Pralnia: 5,71 m2 Gabinet: 9,14 m2 Łazienka: 5,23 m2 Salon z kuchnią: 53,86 m2 Komunikacja: 12,93 m2 Garaż: 23,86 m2 Powierzchnia: użytkowa 115,41 m2; podłóg: 116,90 m2
Pôdorys využiteľné podkrovie
  • Galéria: 8,84 m²
  • Izba / spálňa: 14,06 m²
  • Izba / spálňa: 14,06 m²
  • Chodba: 14,15 m²
  • Kúpeľňa: 8,15 m²
  • Úžitková plocha: 59,26 m²
Pôdorys podlažia
Wiatrołap: 4,68 m2 Pralnia: 5,71 m2 Gabinet: 9,14 m2 Łazienka: 5,23 m2 Salon z kuchnią: 53,86 m2 Komunikacja: 12,93 m2 Garaż: 23,86 m2 Powierzchnia: użytkowa 115,41 m2; podłóg: 116,90 m2
Pôdorys pivnice

Páči sa ti tento projekt?

Groundbreaker

Vyplň formulár a my sa ti ozveme, aby sme tvoju víziu premenili na realitu.

* Povinné polia