Dom Plný Energie. Stavebná spoločnosť - generálny dodávateľ rodinných domov. Pracujeme od pondelka do piatku (9.00-17.00).
Pracujeme od pondelka do piatku (9.00-17.00).

Zavolajte na

alebo napíšte

Vanguard

Energeticky úsporný poschodový dom

Moderná interpretácia klasickej formy

Harmónia s prírodou

Doplnková hospodárska budova

Priestranné terasy a balkóny

Opísanie projektu

S vášňou pre detaily sme vytvorili projekt, ktorý odráža dedičstvo Mazovska aj modernú eleganciu.
Drevená fasáda, odkazujúca na ekológiu a prírodu, skvele kontrastuje s okolím, zatiaľ čo sedlové strechy dotvárajú celok a vytvárajú elegantný a jednotný vzhľad.

Tento projekt zaujme ľudí, ktorí uprednostňujú moderné riešenia s nádychom klasiky. Budova spája funkčnosť prízemia s čarovným podkrovím a najväčšiu pozornosť pútajú veľké presklené steny v obývačke, ktoré vytvárajú takmer filmové plátno s výhľadom na panorámu okolitej krajiny. Hneď vedľa sa nachádza dizajnová stodola v hlbokom odtieni čiernej, ktorá podčiarkuje jedinečný charakter tohto miesta.

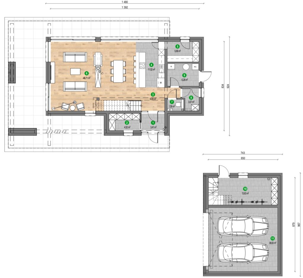
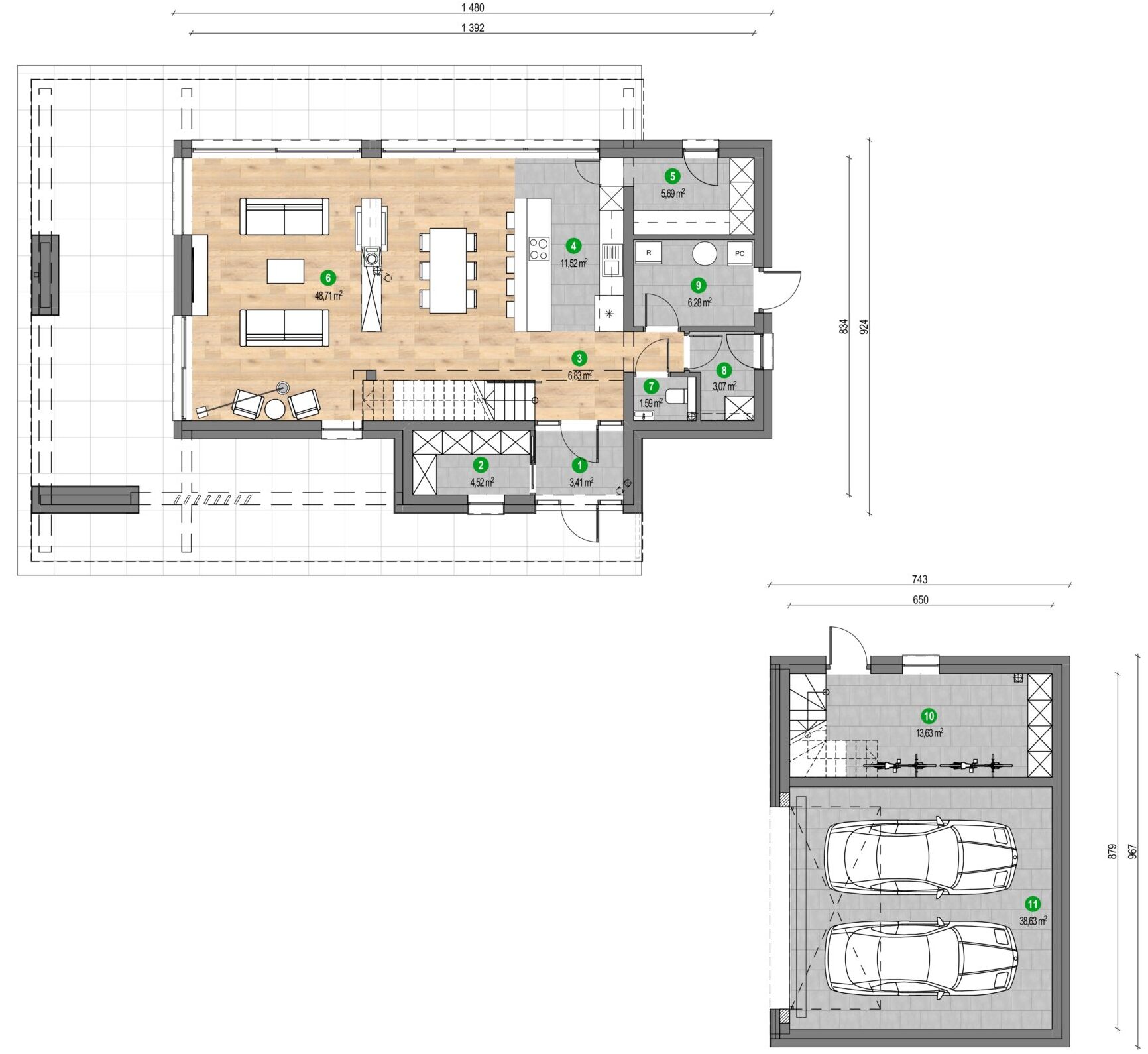
Pôdorys prízemia
  1. Zádverie 3,41 m2
  2. Šatník 4,52 m2
  3. Komunikácia 6,83 m2
  4. Kuchyňa 11,52 m2
  5. Špajza 5,69 m2
  6. Obývačka + jedáleň: 48,71 m2
  7. WC 1,59 m2
  8. Práčovňa 3,07 m2
  9. Hospodárska miestnosť 6,28 m2
  10. Hospodárska miestnosť 13,63 m2
  11. Garáž 38,63 m2

Úžitková plocha obytnej budovy 91,62 m2

Úžitková plocha hospodárskej budovy 52,26 m2

Pôdorys využiteľné podkrovie
  1. Komunikácia 12,79 m2
  2. Izba 18,71 m2
  3. Šatník 4,70 m2
  4. Kúpeľňa 8,38 m2
  5. Izba 14,90 m2
  6. Izba 14,60 m2
  7. Šatník 4,04 m2
  8. Kúpeľňa 10,84 m2
  9. Kúpeľňa 11,19 m2
  10. Izba 40,49 m2

Úžitková plocha obytnej budovy 88,96 m2

Úžitková plocha hospodárskej budovy 51,68 m2

Prierezy domu

Technické parametre

Typ domu:
Poschodový
Počet izieb:
4
Počet kúpeľní:
2
Garáž:
Dvojmiestna garáž
Čistá cena od:
Individuálna kalkulácia
Čistá plocha:
284,52 m²

Bezplatná cenová ponuka
za 60 sekúnd

Koľko bude stáť váš dom? My poznáme odpoveď!

Vyplňte formulár a získajte ponuku ihneď

Populárne projekty

Prízemný dom s obytným podkrovím
Metráž: 161,00 m²
Energeticky úsporný poschodový dom
Metráž: 238,00 m²
Ekonomický Prízemný Dom
Metráž: 98,00 m²
Cena bez DPH od: 117 000 €
Energeticky úsporný prízemný dom
Metráž: 291,00 m²
  1. Zádverie 3,41 m2
  2. Šatník 4,52 m2
  3. Komunikácia 6,83 m2
  4. Kuchyňa 11,52 m2
  5. Špajza 5,69 m2
  6. Obývačka + jedáleň: 48,71 m2
  7. WC 1,59 m2
  8. Práčovňa 3,07 m2
  9. Hospodárska miestnosť 6,28 m2
  10. Hospodárska miestnosť 13,63 m2
  11. Garáž 38,63 m2

Úžitková plocha obytnej budovy 91,62 m2

Úžitková plocha hospodárskej budovy 52,26 m2

Pôdorys prízemia
  1. Komunikácia 12,79 m2
  2. Izba 18,71 m2
  3. Šatník 4,70 m2
  4. Kúpeľňa 8,38 m2
  5. Izba 14,90 m2
  6. Izba 14,60 m2
  7. Šatník 4,04 m2
  8. Kúpeľňa 10,84 m2
  9. Kúpeľňa 11,19 m2
  10. Izba 40,49 m2

Úžitková plocha obytnej budovy 88,96 m2

Úžitková plocha hospodárskej budovy 51,68 m2

Pôdorys využiteľné podkrovie
Wiatrołap: 4,68 m2 Pralnia: 5,71 m2 Gabinet: 9,14 m2 Łazienka: 5,23 m2 Salon z kuchnią: 53,86 m2 Komunikacja: 12,93 m2 Garaż: 23,86 m2 Powierzchnia: użytkowa 115,41 m2; podłóg: 116,90 m2
Pôdorys podlažia
Wiatrołap: 4,68 m2 Pralnia: 5,71 m2 Gabinet: 9,14 m2 Łazienka: 5,23 m2 Salon z kuchnią: 53,86 m2 Komunikacja: 12,93 m2 Garaż: 23,86 m2 Powierzchnia: użytkowa 115,41 m2; podłóg: 116,90 m2
Pôdorys pivnice

Páči sa ti tento projekt?

Vanguard

Vyplň formulár a my sa ti ozveme, aby sme tvoju víziu premenili na realitu.

* Povinné polia