Dom Plný Energie. Stavebná spoločnosť - generálny dodávateľ rodinných domov. Pracujeme od pondelka do piatku (9.00-17.00).
Pracujeme od pondelka do piatku (9.00-17.00).

Zavolajte na

alebo napíšte

PRO 7

Prízemný dom s obytným podkrovím

Elegantná fasáda

Moderná estetika

Zastrešený vstup

Funkčný podiel na zóny

Opis projektu

Moderný rodinný dom pre náročných

Tento projekt ponúka priestranný dvojpodlažný dom, ktorý spája jednoduché línie, eleganciu a funkčnosť. Minimalistická geometrická forma s kontrastom svetlých a tmavých prvkov fasády pôsobí moderne a nadčasovo. Použitie kvalitných materiálov – od štruktúrovanej omietky až po fasádne dosky – dodáva domu jedinečný charakter a vysokú estetickú hodnotu. Veľké presklenia prinášajú množstvo prirodzeného svetla a prepájajú interiér s exteriérom.

Prízemie ponúka veľkorysú dennú zónu – obývaciu izbu s jedálňou a otvorenou kuchyňou, ktorá sa stáva srdcom rodinného života. Dispozíciu dopĺňajú praktické hospodárske miestnosti, garáž pre dve autá a priestranné terasy, ideálne na relax aj posedenia s priateľmi.

Na poschodí sa nachádzajú útulné spálne a moderné kúpeľne, ktoré poskytujú komfort a súkromie. Premyslený pôdorys zaručuje vysokú funkčnosť a naplní očakávania aj tých najnáročnejších rodín.

Tento projekt je určený pre ľudí, ktorí hľadajú elegantný, funkčný a moderný dom s dôrazom na detail a nadčasový dizajn.

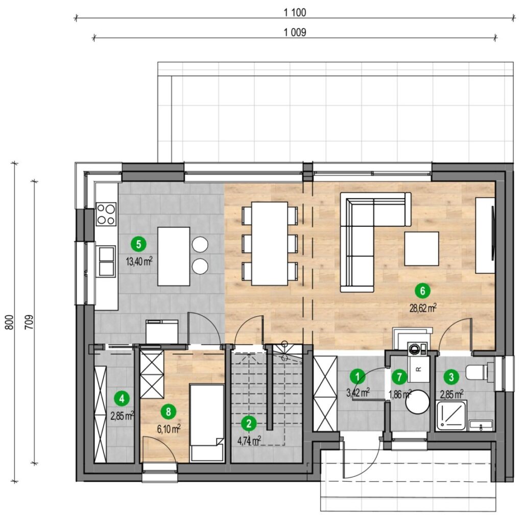
Pôdorys prízemia
  1. Zádverie: 3,42 m²
  2. Technická miestnosť: 4,74 m²
  3. Kúpeľňa: 2,85 m²
  4. Špajza: 2,85 m²
  5. Kuchyňa: 13,40 m²
  6. Obývacia izba + jedáleň: 28,62 m²
  7. Kotolňa: 1,86 m²
  8. Izba: 6,10 m²
  9. Úžitková plocha: 61,20 m²; podlahová plocha: 63,84 m²
Pôdorys využiteľné podkrovie
  1. Schodisko: 5,00 m²
  2. Komunikácia: 7,09 m²
  3. Izba: 13,51 m²
  4. Kúpeľňa: 8,65 m²
  5. Šatník: 7,55 m²
  6. Izba: 12,53 m²
  7. Izba: 10,24 m²
  8. Práčovňa: 2,61 m²
  9. Plocha: úžitková 51,55 m²; podlahová: 67,18 m²

Štandardy oceňovania

  • Základové pásy – pevný a spoľahlivý základ pre dlhú životnosť domu.

  • Podkladový betón – 10 cm vrstva pod základovou doskou pre stabilitu.

  • Nosné steny – pórobetón 25 cm pre pevnosť a energetickú úspornosť.

  • Priečky – pórobetón 12,5 cm pre tiché a stabilné oddelenie miestností.

  • Strešná konštrukcia – rebrový strop a prefabrikované väzníky.

  • Strešná krytina – kvalitná betónová alebo plechová podľa výberu.

  • Statické prvky – železobetónové vence a rámy pre stabilitu stavby.

  • Okná – plastové s izolačným trojsklom pre úsporu energií a komfort.

  • Vchodové dvere – bezpečnostné, s kvalitnou tepelnou izoláciou.

  • Elektroinštalácia – min. 7 elektrických bodov v každej miestnosti.

  • Rozvody vody a kanalizácie – kompletné prípojky v rámci domu.

  • Zateplenie strechy – PUR pena pre špičkovú izoláciu a úsporu energie.

  • Fasáda – grafitový polystyrén 15 cm pre vysokú energetickú efektívnosť.

  • Centrálna rekuperácia – čerstvý vzduch v dome a nižšie náklady na kúrenie.

  • Interiérové omietky – strojové sadrové omietky pre hladký povrch stien.

  • Podlahy – cementový poter pripravený na finálne podlahové krytiny.

Cena nezahŕňa

  • Dekoratívne prvky mimo pôdorysu (napr. drevené pergoly)

  • Terasy realizované priamo na teréne

  • Komín pre krb alebo kachle

Technické parametre

Typ domu:
Prízemný s obytným podkrovím
Počet izieb:
5
Počet kúpeľní:
2
Garáž:
Bez garáže
Rozsah výstavby:
Holodom
Plocha domu:
131,00 m²
Cena bez DPH od:
€ 170 500
€ 1 302,00 / m²
Energeticky úsporný holodom, odhadovaná cena. Údaje platné 17.04.2026
Táto ponuka má iba informatívny charakter a nie je návrhom na uzavretie zmluvy podľa Občianskeho zákonníka.

Bezplatná cenová ponuka
za 60 sekúnd

Koľko bude stáť váš dom? My poznáme odpoveď!

Vyplňte formulár a získajte ponuku ihneď

Populárne projekty

Ekonomický Prízemný dom
Metráž: 85,00 m²
Cena bez DPH od: 102 000 €
Energeticky úsporný poschodový dom
Metráž: 238,00 m²
Energeticky úsporný prízemný dom
Metráž: 179,00 m²
Cena bez DPH od: 220 500 €
Energeticky úsporný prízemný dom
Metráž: 116,00 m²
Cena bez DPH od: 147 000 €
  1. Zádverie: 3,42 m²
  2. Technická miestnosť: 4,74 m²
  3. Kúpeľňa: 2,85 m²
  4. Špajza: 2,85 m²
  5. Kuchyňa: 13,40 m²
  6. Obývacia izba + jedáleň: 28,62 m²
  7. Kotolňa: 1,86 m²
  8. Izba: 6,10 m²
  9. Úžitková plocha: 61,20 m²; podlahová plocha: 63,84 m²
Pôdorys prízemia
  1. Schodisko: 5,00 m²
  2. Komunikácia: 7,09 m²
  3. Izba: 13,51 m²
  4. Kúpeľňa: 8,65 m²
  5. Šatník: 7,55 m²
  6. Izba: 12,53 m²
  7. Izba: 10,24 m²
  8. Práčovňa: 2,61 m²
  9. Plocha: úžitková 51,55 m²; podlahová: 67,18 m²
Pôdorys využiteľné podkrovie
Wiatrołap: 4,68 m2 Pralnia: 5,71 m2 Gabinet: 9,14 m2 Łazienka: 5,23 m2 Salon z kuchnią: 53,86 m2 Komunikacja: 12,93 m2 Garaż: 23,86 m2 Powierzchnia: użytkowa 115,41 m2; podłóg: 116,90 m2
Pôdorys podlažia
Wiatrołap: 4,68 m2 Pralnia: 5,71 m2 Gabinet: 9,14 m2 Łazienka: 5,23 m2 Salon z kuchnią: 53,86 m2 Komunikacja: 12,93 m2 Garaż: 23,86 m2 Powierzchnia: użytkowa 115,41 m2; podłóg: 116,90 m2
Pôdorys pivnice

Páči sa ti tento projekt?

PRO 7

Vyplň formulár a my sa ti ozveme, aby sme tvoju víziu premenili na realitu.

* Povinné polia